






Penthouse sur cour T3
Mission
Sélectionné par le jury du Prix National de la Construction Bois 2014.
Reims
Maîtrise d’oeuvre : Aurélie Barbey
Maître d’ouvrage : SCI Marie Stuart
Logements - surélévation - structure bois - végétalisation coeur d’ilôt et façade 2012 - 2020
Le projet se situe dans une opération de 12 logements
L’extension est une boîte en structure bois posée sur l’existant.
Le site est très contraint est bati, le choix de la filière sèche se justifie pleinement (temps de chantier sur place + chantier propre).
Sur une face de la boîte, afin de minimiser les vis-à-vis, une trame servant de support végétal est implantée en façade.
La pergola sert de premier filtre végétal au projet, le protégeant des voisins mais aussi de la lumière.
L’autre face de la boîte s’ouvre totalement afin de créer une terrasse intérieure.
Le toit est traité en toiture terrasse accessible.
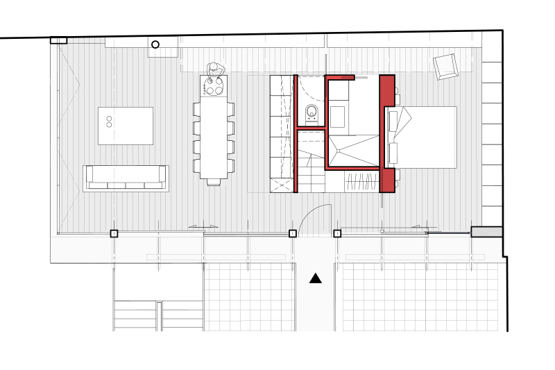
Un bloc central gère toutes les fonctions cuisine, salle de bain, sanitaire.
Il est traité tel un objet creusé, créant des effets de transparence, d’opacité, de niches dans ce bloc.